LA181
Plage de prix : $3,000.00 à $5,500.00
LA181 est une maison qui permettra de passer du bungalow simple à celui d’une bigénération avec un garage au coeur des habitations.
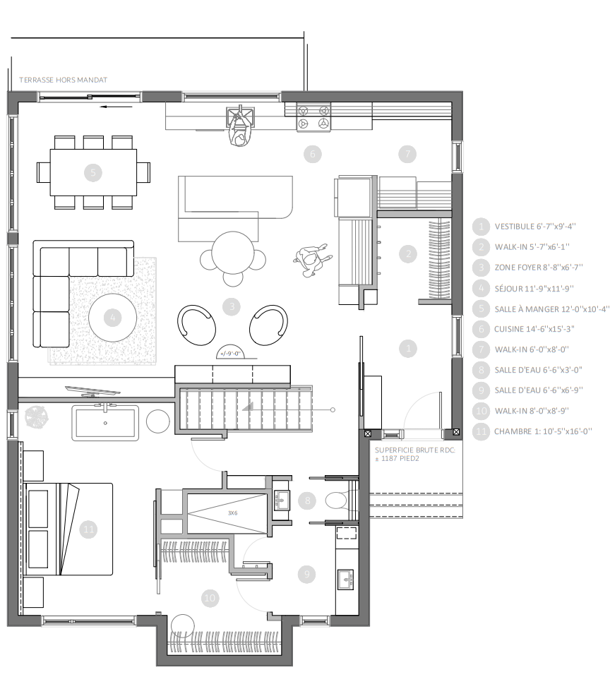
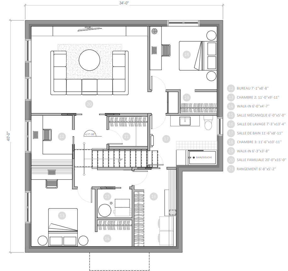
Bungalow de 34′ par 40′ comprenant 3 chambres et 1 bureau. (+ou-1187pied2)
Utiliser le bouton d’option pour afficher les différentes évolutions de ce plan.
*** Un délai de 2 semaines ouvrable est présentement nécessaire pour la livraison de ce plan
Description
LA181 est une maison qui permettra de passer du bungalow simple à celui d’une bigénération avec un garage au coeur des habitations.
Bungalow de 34′ par 40′ comprenant 3 chambres et 1 bureau, cette demeure permettra à la famille de bien vieillir et d’évoluer avec elle. Avec le terrain le permettant, vous pourrez construire le plan de base, y ajouter le carport, qui pourra être convertie en garage et plus tard, y ajouter une habitation connexe qui transformera la demeure en bigénération. Le concept permet de prévoir la vision à long therme en subissant le moins d’intervention possible et surtout, en réduisant les déchets. L’escalier tout près de la suite principale au rdc, permet un accès rapide au sous-sol. Celle-ci demeure intime et la toilette étant isolée, vous permettra de restreindre l’accès à votre salle de douche. Sone plans vous offre aussi quelques variante dont celle de la baignoire dans la chambre au rdc ou encore combinée avec la salle de douche.
Vous avez la libertée de choisir les options et de construire le tout à votre rythme!
Voici le design intérieur proposé pour LA181. Vous y retrouverez les produits locaux tel que les papiers peints station d et les luminaires de studio Botté. Il est toujours possible de nous contacter afin d’obtenir le design sur mesure à votre image.
Information complémentaire
| Option | Base, Carport, Garage, Bi-génération, Unité seule bi-génération |
|---|---|
| Inclure Évolutions | Oui, Non |
Vous devez être connecté pour publier un avis.



















Avis
Il n’y pas encore d’avis.